Palma de Mallorca IV
Palma de Mallorca | 1 building
Developer:
FIIN - Architecture and Engineering, Sociedade Unipessoal, Lda.
AA
Location:
Não especificado
Category: FINANCIADO
Project Details
| Project ID: | 4 |
| Category: | FINANCIADO |
| Real Estate Sector: | Não especificado |
| Project Stage: | Not specified |
| Portuguese Stage: | Não especificado |
| Project Type: | Empréstimo de Desenvolvimento |
| Current Status: | Not specified |
| Use of Proceeds: | Not specified |
Location & Developer
| Location: | Não especificado |
| Developer: |
FIIN - Architecture and Engineering, Sociedade Unipessoal, Lda.
Rating: AA |
| Risk Rating: | Not rated |
Description
Short Description:
Palma de Mallorca | 1 building
Project Summary:
Purpose: To fund the costs associated with the real estate development and construction of a building with six dwellings and commercial premises. Location: Palma de Mallorca, Islas Baleares (Spain). Type of opportunity: loan. Type: fixed-rate. Scoring: AA. Guarantee: First-rank mortgage guarantee registered in the land registry. Loan To Value (LTV): 69,68%. Maturity: 8 months. Nominal annual interest rate: 9%. Opportunity profitability: 6%. Type of capital repayment: at maturity. Interest payment: quarterly. Minimum investment: €300. Plot: owned by the developer. Sales: sold 4 of the 6 dwellings (1 in exchange) and the commercial premises (in exchange), 70% of the development. Status of the project: according to the appraisal carried out on 08/07/2024 the progress of the work was 31%, currently it is at 40% according to the certificate sent by the promoter.
Project Description:
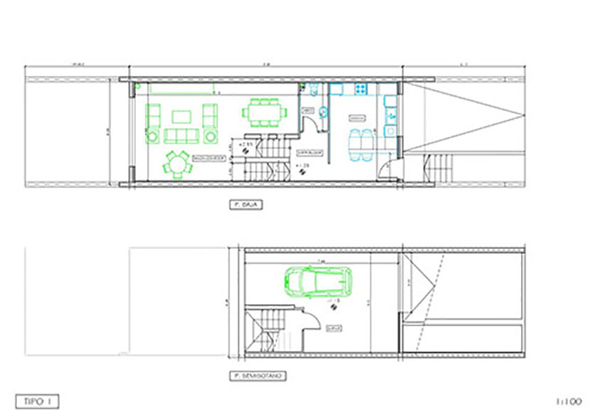
We present Palma de Mallorca IV, the fourth tranche of a fixed-rate project with a first-rank mortgage guarantee that consists of funding the costs associated with the development of a building of six flats and commercial premises, at 73 Aragon Street, Palma de Mallorca (Islas Baleares) Spain. The building is distributed on six floors, one flat per floor, all the flats have two bedrooms, two bathrooms, living-dining room, kitchen, and terrace. On the top floor of the building, we find the communal area. The total built area is 711,75 m2 Homes with a modern design, excellent distribution and fully functional. The dwellings are distributed as follows: Two bedrooms. Living-dining room. Two bathrooms. Three balconies. Spacious and bright spaces, flat roofs, and energy-efficient buildings. The demolition licence was granted on 03/10/2022 by Palma Town Hall. The building permit was granted by the City Council of Palma on August 3, 2023. This loan of 135.000€ corresponds to the fourth tranche of a single project of 975.000€ (fifth tranches are foreseen).
Detailed Description:
Original Developer: The developer of the project is Promociones Arago 73 S.L. and its parent company Wigan Trade S.L.
Wigan Trade is a group of professionals with numerous projects in the Mediterranean area. The promoter group has a share capital at 31/12/2021 of 200.000€.
Wigan Trade has already financed four projects on FIIN, which are up to date with payments and are progressing according to plan.
In the future, the promoter will be able to apply for other loans through the platform to obtain financing for the realisation of other projects, within the legal limits and as long as its financial situation allows it. The company's future leverage may therefore be higher.
About:
-
Content:
-
Financial Overview
| Estimated Project Value: | €202,500.00 |
| Funding Target: | €135,000.00 |
| Funding Raised: | €63,489.00 |
| Funding Progress: |
|
| Investment Total: | €0.00 |
| Equity Percentage: | 0.0% |
| Crowdfunding Percentage: | 0.0% |
| Bank Debt Percentage: | 0.0% |
| Equity Amount: | €310,500.00 |
| Bank Debt Amount: | €900,000.00 |
| Crowdfunding Amount: | €600,000.00 |
| Funding Period (Months): | 10 |
LTV Ratios
Post-Crowdfunding
Post-Bank Financing
Post-Project Completion
Financial Overview
Project Valuations
Post-Crowdfunding
Post-Bank Financing
Post-Project Completion
Investment Structure
| Investment Structure: | Not specified |
| Investment Type: | Not specified |
| Return Structure: | Not specified |
| Mortgage Priority: | Not specified |
| Minimum Loan Term (Months): | 3 |
Investment Terms
| Minimum Investment: | €300.00 |
| Loan Term: | 10 meses |
| Investor Interest Rate: | 9.0% |
| Developer Interest Rate: | 10.0% |
| CrowdFIIN Interest Rate: | 1.0% |
| Investors Count: | 85 |
Funding Unit Structure
Guarantees Provided
No guarantees specified
Insurance Policies
No insurance policies specified
Risk Factors
Before investing in this project, the investor must know the risks of his investment: FIIN recommends carefully reading the Basic Information for the Investor. In compliance with art. 61 of Law 5/2015 on the Promotion of Entrepreneurial Financing, FIIN proceeds to inform the investor of the risks that he/she will run when investing in this project: • Risk of total or partial loss of the invested capital: the main risk associated with any type of investment is the total or partial loss of the money invested, as well as the probability that the return obtained, will be lower than expected or estimated. In general, the higher the return on an investment, the higher the risk. • Risk of not obtaining the expected financial return: there is no such thing as a safe investment. There is always a risk of losing everything invested or of not obtaining the expected financial return. Investments are based on future expectations that may not necessarily be realized, so the expected financial return on the investment may never occur or may occur differently than expected. • Operational risk: failures or problems in systems, people or operational flows can have a significant impact on the investment. In any activity in any market, there is always an operational risk. • Inflation risk: the possibility of rising inflation may cause the return on investment to decline due to the inevitable loss in the value of money in such circumstances. • Risk of Lack of liquidity: investing in this project may mean that the investor may not be able to dispose of the money invested when needed, having to pay attention to the estimated timeframe for the liquidity of the investment and obtaining the corresponding return. • Risk of not being able to influence the management of the developer: investors, as borrowers, like any other person outside a commercial company, have no right to influence the management of the developer or its assets unless this is provided for in the investment contract, and the investment contract may influence the developer's management of the developer. • Fraud risk: as in any other economic operation, there is a risk of fraud due to improper use of the money obtained for the project. To minimize this risk, the drawdowns of the loan amount that are delivered to the developer will be made using a company external to FIIN that will check the progress of the project, making the drawdowns to the developer according to a calendar of drawdowns and after administratively verifying the fulfilment of each earlier milestone of the calendar. The amounts of the loan not drawn down by the developer while waiting to reach the next milestone of the drawdown calendar will always be in the FIIN Account of the developer in the payment entity used by the platform ("Lemonway") until the developer requests the drawdown, which will be authorized by the monitoring company if the developer meets the requirements established by the monitoring company. The invested capital is not guaranteed by the investment guarantee fund or the deposit guarantee fund. Investment in real estate should be conducted as a diversification strategy of a larger portfolio, and investment in projects published on the FIIN platform is not recommended for people who do not have sufficient knowledge to understand the risks of investing in projects published by the crowdfunding platform.
Project Images
Floor Plans
Project Details
| Project Constitution: | Not specified |
| Description Mortgage Guarantee: | The property provided by the developer as a first-rank mortgage guarantee is the subject property of this project located in Calle Aragon 73, Palma de Mallorca, Islas Baleares, (Spain). According to the valuation certificate issued by Gloval Valuation on 08/07/2024 the current mortgage/valuation value of the described property amounts to €1.176.698,70. Therefore, the valuation of the mortgaged property on the loan is 143,49% (mortgage value €1.176.698,70/ loan amount €820.000). The LTV (Loan To Value) of the project is 69,68% (loan amount €820.000 / current appraised value €1.176.698,70). The estimated value of the property in a completed scenario according to the comparison method amounts to € 2,445,866.77. |
| Guarantee Agent: | The Guarantee Agent chosen for this project is Monk Advisors S.L., a professional firm with experience in financial sectors providing advisory services and fiduciary services in the issuance of bonds, warrants or other securities. Monk Advisors S.L. is not affiliated with any financial services group. |
| Project Monitoring: | The monitoring company PROYECTOS CIGA will carry out the monitoring of this project, having permanent control of the destination of the capital provided by the investors and delivering this capital to the developer according to an agreed schedule after delivery of justification of compliance with certifications. To this end, the developer and the monitoring company will open a escrow account where the funds financed by the investors will be transferred in such a way that each provision to the developer must be justified to the monitoring company and therefore the full amount of the loan will not be delivered to the developer at once. |
| Project Fee: | FIIN will not charge any fee to the investor for this opportunity. The developer will be charged a fee that is determined based on a % of the funds raised for the project, provided that the project is successfully closed, i.e., that the funding target published on the platform is reached. In case it is not successfully closed, FIIN will not charge this fee. Once the campaign is finished and as a previous step to the delivery of the money to the developer, this commission is deducted from it in favour of FIIN. It does not affect the final profitability obtained by the investors, since the developer is the one who assumes its cost. In this opportunity, FIIN' commission is 6,5% + VAT being the commission financed within the opportunity. |
Risk & Legal Information
| Scoring: | Gloval |
| Mortgage: | - |
| Interest: | - |
| Warnings: | FIIN complies with Regulation (EU) 2020/1503 of the European Parliament and of the Council of 7 October 2020 on European providers of crowdfunding services for businesses, and amending Regulation (EU) 2017/1129 and Directive (EU) 2019/1937 and is authorised by the CNMV as a Participatory Finance Platform registered under number 20. FIIN is not a credit institution or an investment services company. It is not a member of any investment guarantee fund or deposit guarantee fund. Therefore, the invested capital is not covered by these funds. FIIN is neither a credit institution nor an investment services company nor does it supply financial advice, so nothing on this website should be interpreted as such. The information on this page is for general information purposes only and does not constitute specific advice. The participatory financing projects published on the website are not subject to authorisation or supervision by the Comisión Nacional del Mercado de Valores or the Bank of Spain or any other national or foreign regulator. The information provided by the developer has not been reviewed by the CNMV and does not constitute a prospectus approved by the CNMV. The developer of the project is responsible to investors for the information it has provided to the crowdfunding platform for publication within the project on the website. The information shown has been prepared by FIIN based on available information provided by the developer. Neither FIIN nor its collaborating companies or suppliers accept responsibility or liability concerning the accuracy or sufficiency of the information referred to in the project. The statements or declarations with future projections refer exclusively to the date on which they were expressed, they do not form any guarantee of future results. Likewise, FIIN will be able to close the financing of this opportunity/project when it has been 90% financed. These possibilities that the legislation offers to the platform will be used when the typology and characteristics of the project make it advisable so that the execution deadlines are not prejudiced. You can find more information here. The references to law 5/2015 are as a consequence of being a tranche of a project contemplated under a loan contract signed for that law, prior to the entry into force of the European Regulation. |
Project Timeline & Statistics
| Subscription Period (Months): | 1 |
| Funding Started: | Jan 02, 2024 |
| Days Left: | 63 |
| Number of Investors: | 85 |
| Counted Views: | 0 |
Invest in This Project
Please sign in to invest in this project.
Sign InMinimum investment: 300.00 €
Term: 10 months
All investments are secured by real estate assets
Similar Projects
You might also be interested in these properties
Residências Valongo
Lagueirões | Valongo